Als eines von vier eingeladenen Teams beschäftigten wir uns mit dem Thema Verdichtung im Villenquartier. Das Projekt QUERBEET transportiert die Qualitäten eines Einfamilienhauses in eine «Stadtvilla» mit 6 Wohnungen.

Das neu geschaffene Volumen ist quer zur Strasse gestellt. So ist die Fassaden- dimension zur Strasse möglichst klein gehalten. Jede Fassade wird mit Vor- und Rücksprüngen und der Fensterverteilung zu einer lebendigen Komposition, die an die Nachbarschaft anknüpft.
Im dicht begrünten Quartier ist die Natur der Hauptdarsteller: sie trägt zur Identität des Quartiers und zur Wohnqualität bei. Die Setzung des neuen Hauses ermöglicht den Erhalt und die Ergänzung der bestehenden Grünelemente. Das neue Volumen definiert unterschiedliche Bereiche im Aussenraum und verleiht das richtige Mass an Privatheit. Der zugängliche Garten ist ein Mehrwert für alle Wohnungen und unterscheidet das neue Haus von vielen Mehrfamilienhäusern in der Stadt.
Der Eingangsbereich nimmt wohltuend Abstand vom Strassenraum und bildet einen repräsentativen Vorplatz mit Blick in die Tiefe des Gartens.
Vom überhohen Haupteingang her führt die querstehende, durchgehende Wand als Verbindungselement zum Treppenhaus und weiter zum gemeinsamen Garten.
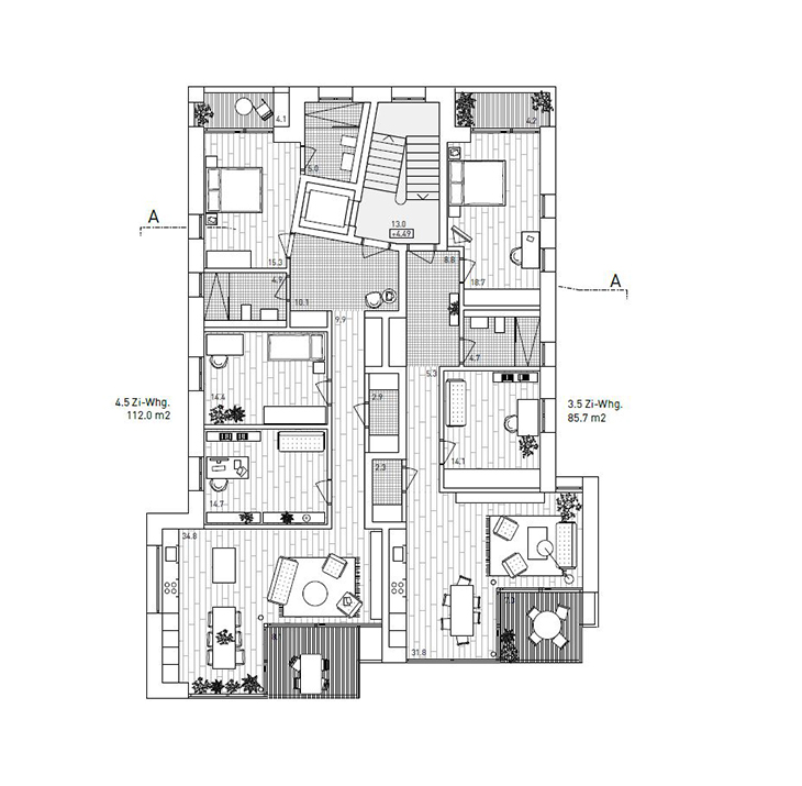
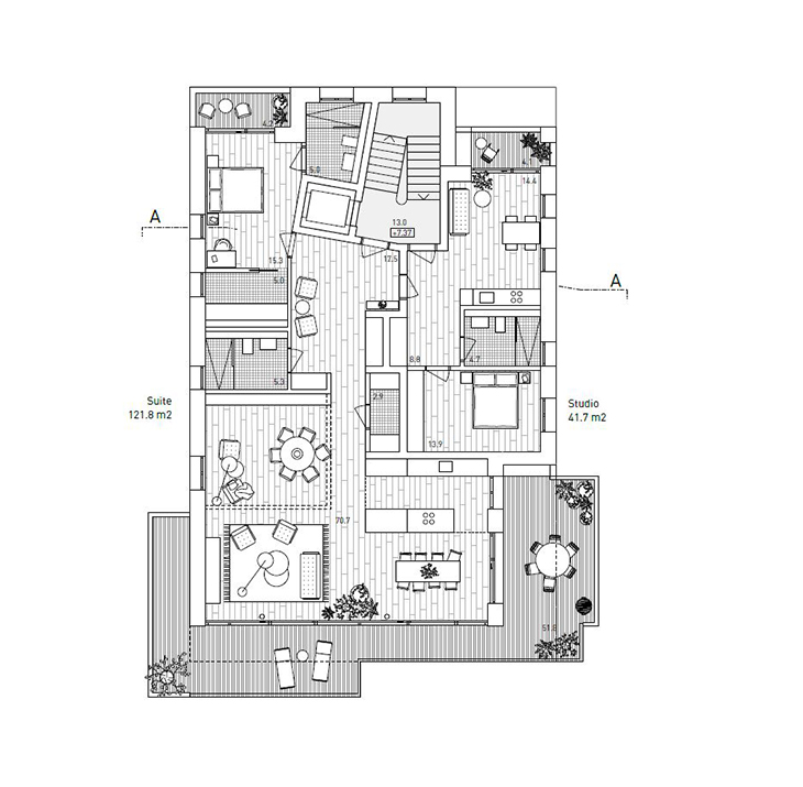
Jede Wohnung geniesst eine zwei- bis dreiseitige Fassadenausrichtung. Die Wohnräume sind durch die eingeschobenen Loggien in einen Wohn- und Essbereich unterteilt. Diese sind nach Südwesten offen gestaltet, so dass die grüne Hecke am Parzellenrand der gefühlte Abschluss des Wohnraums bildet. Die zwei attraktiven Ateliers im Erdgeschoss, der gemeinsame Gartenbereich und die Waschküche mit Tageslicht ergänzen das private Wohnungsangebot.
Eckdaten:
– Bauherrschaft: Privat
– Auftrag: Studienauftrag auf Einladung, ohne Rang
– Januar 2020 – August 2020



