Der Studienauftrag der Bau- und Wohngenossenschaft Nünenen erfolgte in einem Dialogverfahren mit einer Zwischenbesprechung mit dem Beurteilungsgremium. Unser Projekt «für d’Lise» hat die Jury überzeugt und das Verfahren gewonnen.

Die Überbauung Nünenen/Schönau ordnet sich nach einem klaren orthogonalen Muster. Bereits heute nimmt das Gebäude an der Pestalozzistrasse 95 eine Sonderstellung ein: als einziges eingeschossiges Gebäude beinhaltet es gewerbliche Nutzung. Allerdings vermag es weder städtebaulich noch architektonisch das Quartier positiv zu prägen und identifikationsstiftend zu wirken. Der Bau soll mit einem Neubau mit quartiernaher Nutzung im Erdgeschoss und Wohnungen in den Obergeschossen ersetzt werden. Das richtige Mass von Nutzung und Dichte war offen und ein entscheidender Teil der Aufgabenstellung.
«Für Elise» ist ein bekanntes Klavierstück von Ludwig van Beethoven. Das Besondere: es ist im 3/8-Takt notiert. Unser Projekt erweitert die Anlage im 3/8-Takt mit einem Neubau mit 3 und 8 Geschossen. Das neue Volumen spielt mit den vorhandenen Gebäuden und den Strukturen. Es ordnet sich dem orthogonalen Muster unter, variiert jedoch seine Gebäudehöhe. Die acht Geschosse an der Pestalozzistrasse bilden einen neuen, gut erkennbaren Zugang zur Siedlung. Das Volumen markiert die gewünschte Präsenz im Quartier. Im Innern der Siedlung nimmt die Dreigeschossigkeit den Massstab der Nachbarhäuser auf. Das Neubauvolumen tritt so in Dialog mit den bestehenden Bauten.
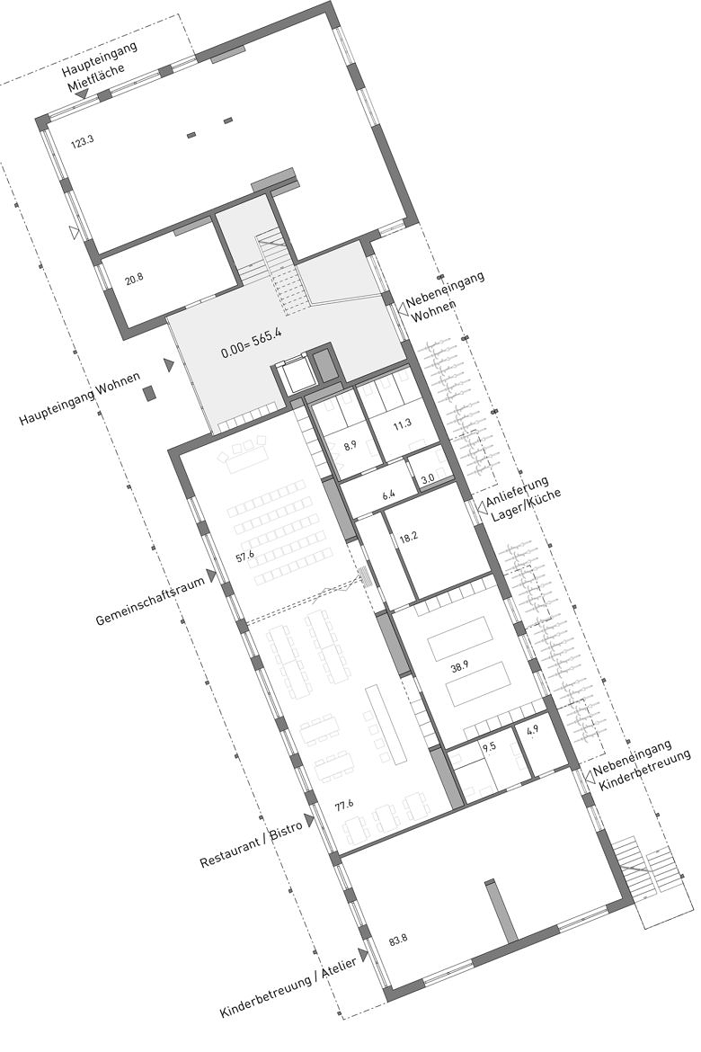
Auf der Westseite, entlang der Dienstleistungs- und Gewerbefläche und dem Eingang zu den Wohnungen, führt ein Weg zum neuen Platz. Das Bistro ist zum Platz hin orientiert und profitiert von einer guten Besonnung und der Neugestaltung des Platzes. Die heute offene und mit Parkplätzen belegte Fläche wird zum Siedlungstreff umfunktioniert. Im Osten liegt ein Mergelplatz mit Bestuhlung und angrenzendem Spielplatz. Dieser Bereich liegt in unmittelbarer Nachbarschaft zu Kita und Bistro und wird von diesen mitbenutzt. Mehrstämmige Heister spenden partiell Schatten, ein Brunnen bietet Erfrischung und Kühlung: Es entsteht ein angenehmes Aufenthaltsklima.
Sämtliche Wohnungen sind über einen einzigen, grosszügigen Eingang erschlossen. Adresse und Haupteingang liegen auf der Westseite, ein Zu- und Ausgang auf der Ostseite ermöglicht die Durchlässigkeit zu den beiden Längsseiten. Die Wohnungserschliessung ist ein hybrid aus Laubengang und Punkterschliessung. Das Treppenhaus ist in den ersten drei Geschossen ein lebendiger Raum und reduziert sich ab dem vierten Geschoss zu einer effizienten Punkterschliessung. Die Reduktion auf eine gemeinsame Erschliessung für die 27 Wohnungen fördert die Begegnung und die Kommunikation untereinander. Die zwei Erschliessungstypen erzeugen zudem unterschiedliche Wohnungstypen, was die Vielfalt der Wohnungen fördert.
Eine klare Struktur mit Schotten und Stützen ermöglicht optimiert dimensionierte statische Bauteile. Die Geschossdecken, die Wohnungstrennwände und der Treppenhauskern sind betoniert. Die Fassaden werden in vorfabrizierten Holzelementen ausgefacht, was die Bauzeit verkürzt. Die Vorteile von Massivbau bei Decken und Wohnungstrennwänden (Statik und Erdbebensicherheit, Speichermasse bei sommerlichem Wärmeschutz, Schallschutz im Wohnungsbau) werden bei einer solchen Hybridbauweise ebenso genutzt wie die Vorteile vom Holzbau (schnelle Bauweise durch Vorfabrikation, gute Erreichung des Minergie-Eco-Standards).
Eckdaten:
– Bauherrschaft: Bau- und Wohngenossenschaft Nünenen Thun
– Auftrag: Studienauftrag im Einladungsverfahren, 1. Rang, 2019
– Landschaftsarchitektur: Klötzli Friedli Landschaftsarchitekten Bern
– Überbauungsordnung in Bearbeitung, Ausführung vorgesehen für 2022-2023








