Als eines von drei eingeladenen Teams erarbeiteten wir im Dialogverfahren einen Ersatzneubau für 10 Wohnungen im Zentrum von Jegenstorf. Mit unserem Beitrag IMDORF UND AMGARTEN schlagen wir einen Ansatz vor, der stimmig an der historischen Hauptstrasse verankert ist und gleichzeitig die Qualitäten des angrenzenden Grünraums ausschöpft.

Der dreigeschossige Neubau steht selbstbewusst im Dorf, zwischen den historischen Schwerpunkten Gasthof Löwen, Gasthof Kreuz und der Kirche. Das Gebäude nimmt gebührend Abstand zur schützenswerten Zehntscheune. Durch den Abstand entsteht, in Zusammenhang mit der Dienstleistung im Erdgeschoss, ein angemessener Vorplatzbereich. Der Dachfirst verläuft in Strassenrichtung, stellt so einen bewussten Regelbruch zu den Firstrichtungen der Bestandesbauten südöstlich der Bernstrasse dar und erzeugt eine ortsbauliche Spannung im Dorfzentrum.
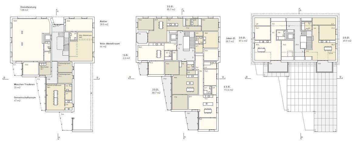
Der zweiteilige Neubau definiert den Gartenraum und bildet zusammen mit den angrenzenden Grünräumen der Nachbarparzellen eine grüne Oase mitten im Dorf. Gegen Nordosten begrenzt der gestaffelte Baukörper den Garten. Die Volumensetzung verhält sich analog anderer Gebäudesetzungen im Dorf, welche sich um einen gemeinsamen Grünraum gruppieren. Der Garten ist direkt vom Treppenhaus erreichbar und bietet allen Bewohnerinnen und Bewohnern Möglichkeiten zur Nutzung und Aneignung.
Der Hauptbau steht als verputzter, mineralischer Baukörper mit einer Lochfassade im Dorf. Die Fensterbrüstungen schützen die Räume zum Dorf vor Einblick und erzeugen von Innen bilderhafte Ausblicke ins Dorf und zur Kirche. Im Garten überrascht der andersartige architektonische Ausdruck mit Wohnlichkeit und grossen, begrünten Balkonvorbauten vor durchgehenden, vertikal unterteilten Glasflächen.
Sämtliche attraktiv ausgerichtete Wohnungen sind über ein grosszügiges, natürlich belichtetes Treppenhaus erschlossen. Das Treppenhaus ist Begegnungsraum und fördert zusammen mit dem Waschsalon und dem Gemeinschaftsraum im Erdgeschoss die sozialen Kontakte im Haus.
Eckdaten:
– Bauherrschaft: Genossenschaft Elektra, 3303 Jegenstorf
– Auftrag: Studienauftrag auf Einladung, ohne Rang
– August 2019 – März 2020





