Achtzig 3.5-Zimmer-Wohnungen und acht 2.5-Zimmer-Wohnungen werden Innen komplett saniert und umgestaltet, ein Viertel davon sind neu als Alterswohnungen konzipiert. Trotz identischer Grundrisse im Bestand werden für die beiden Bauherrschaften zwei unterschiedliche Lösungsansätze umgesetzt.

Das zwölfgeschossige Gebäude an der Normannenstrasse 3-9 wurde durch Hans und Gret Reinhard als eines von vier scheibenförmigen Hochhäusern der Überbauung Schwabgut 1965-69 in Beton-Elementbauweise erstellt. Die vier Eingänge erschliessen je 22 Wohnungen auf elf Geschossen. Das Erdgeschoss beinhaltet Waschräume, Technikräume und Veloabstellflächen. Die Baugenossenschaft Brünnen-Eichholz ist im Besitz von 66 Wohnungen. Der Baugenossenschaft FAMBAU gehören die 22 Wohnungen, welche direkt an das Domicil Schwabgut angrenzen. Neu sind diese Wohnungen als Alterswohnungen gestaltet und werden durch das Domicil Schwabgut betrieben.
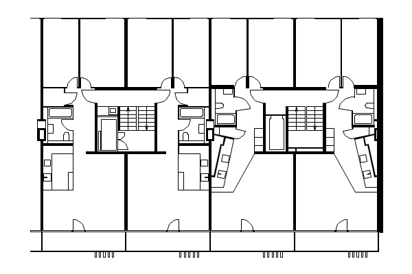
Durch die veränderte Nutzung der Wohnungen wurden zwei Grundrisskonzepte entwickelt: Die Küchen der 22 Alterswohnungen sind als Zeilenküche konzipiert und öffnen sich vom Eingangsbereich zum Wohnbereich, was einerseits viel Bewegungsfreiraum im Eingangsbereich ermöglicht, andererseits die eher dunkle Eingangszone spürbar aufhellt. Die Küche transformiert sich im Mittelteil zu einer Wand, welche den Nassraum abschliesst und sich zu den Zimmern hin im Grundriss wieder verjüngt.
Es entsteht eine Figur im Raum, welche den ganzen Grundriss gliedert und organisiert. Die Bäder sind mit schwellenlosen Duschen ausgestattet und die Balkonböden wurden erhöht, so dass ein schwellenloser Ausgang möglich ist.
Die Alterswohnungen sind dank dem Einbau eines neuen Liftes mit Haltestellen auf allen Geschossen nun hindernisfrei. Durch die grösseren Eingriffe in der Erschliessung sind die Wohnungen der FAMBAU in unbewohntem Zustand saniert worden.
Die 66 Wohnungen der Baugenossenschaft Brünnen-Eichholz wurden in vier Etappen strangweise in bewohntem Zustand saniert. Pro Wohnung war eine Bauzeit von fünf Wochen vorgesehen. Die Umbauarbeiten der Wohnungen wurden von oben nach unten in Angriff genommen. Täglich wurde in einer bis zwei neuen Wohnungen mit den Umbauarbeiten begonnen. Der Grundriss orientiert sich stärker am Bestand: die Küche ist winkelförmig angeordnet und schliesst durch ein Regalelement gegen den Wohnraum ab.
Sämtliche Wohnungen sind mit einer kontrollierten Lüftung mit Wärmerückgewinnung ausgestattet und profitieren von der erneuerbaren Energie durch die 90im² grosse Solaranlage, welche auf dem Dach erstellt wurde.
Eckdaten:
– Fertigstellung: 2014
– Auftraggeber: Baugenossenschaft Brünnen Eichholz und FAMBAU Genossenschaft






