Die von Hans und Gert Reinhard, 1955 erbaute, Familiensiedlung Meienegg muss durch Neubauten ersetzt werden. Wir schlagen eine Herangehensweise vor, die auf dem Bestand aufbaut und die baulichen und atmosphärischen Qualitäten sowie die Identität der Siedlung mitnimmt und in ein vielseitiges Stadtquartier umwandelt.

Zusammen mit den bestehenden Häuser bilden die Neubauten ein Ensemble mit differenzierten Atmosphären. Die Vielseitigkeit ermöglicht eine angemessene Antwort auf die unterschiedlich angrenzenden Quartierfragmente und bildet so ein spannendes Stück Stadt. Abwechslungsreiche Bautypologien, unterschiedliche Öffentlichkeitsgrade und das Spiel von Enge und Weite lassen Raum für unter- schiedliche Bevölkerungsgruppen entstehen.
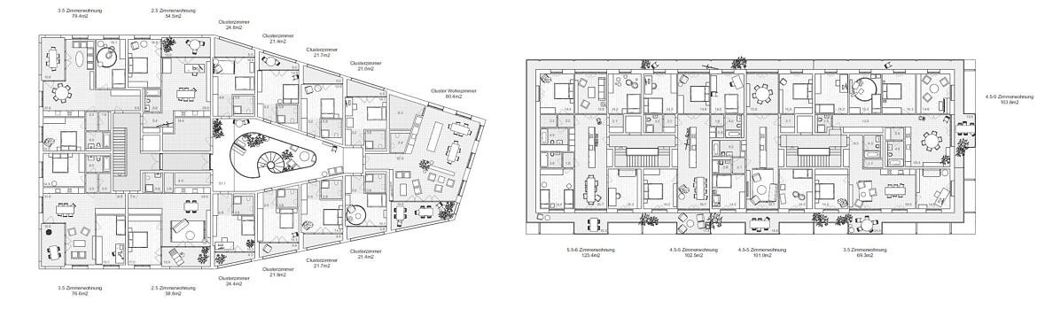
Die Siedlung Meienegg wird durch eine Anpassung und Erweiterung vom Strassennetz mit dem Quartier und der Stadt zusammengelesen. Die neue Meienegg- und Langobardenstrasse sowie der Keltengasse sind dem Fuss- und Veloverkehr gewidmet und erhalten einen ausgeprägten öffentlichen Charakter. Sämtliche Häuser erhalten eine klare Adresse.
Der entstehende Quartierteil ist durch die Strassenräume städtisch geprägt. Konzentrierte Bereiche bieten den Bewohnern Grünräume mit Rückzugs- möglichkeiten. Entlang der nordöstlichen Parzellengrenze knüpft der Grünraum an die angrenzenden Privatgärten. Zwei zusätzliche durchgrünte Höfe bieten eine intimere, ruhende Seite zu den anderen Häuser.
Die bestehenden Bauten sind integraler Teil der städtebaulichen Leitidee: Im Zusammenspiel mit den Neubauten sind sie für das gesamte Quartier identitätsstiftend. Die unterschiedlichen Bautypologien sind Teil der generierten sozialen Dichte.
Die neuen Volumina sind parallel zu den in der zweiten Etappe erhaltenen Bauten gesetzt.
Der Öffentlichkeitsgrad entwickelt sich parallel zu Bewegungsflüssen und Aktivität. Wenn die Strassen am meisten Öffentlichkeit ausstrahlen, mit Weitsicht und Hauszugängen, erlebt man in den Höfen eine gefasste, intimere und ruhende Atmosphäre. Durchstösse durch die Höfe bilden halb-private Aufenthalts- und Spielbereiche für die Bewohner.
Bereits in der ersten Etappe werden das Subzentrum und die Meieneggstrasse neu gebaut. Die Randpartie ist damit klar definiert. Die zweite Etappe betrachten wir als qualitätsvolles Ziel. Der Erhalt von drei der bestehenden Häuser der Siedlung Meienegg, ungefähr ein Viertel der bestehenden Überbauung, ist nicht nur von politischem-denkmalpflegerischem Interessen, sondern ein bewusster Beitrag zur Identität und Sozialverträglichkeit. Die dritte Etappe zeigt möglichen Totalersatz der gesamten Siedlung. Die letzten drei ursprünglichen Häuser werden durch breitere und höhere Volumen ersetzt, die sich den neuen Bautypen annähern.
Eckdaten:
– Bauherrschaft: FAMBAU Genossenschaft, 3018 Bern
– Auftrag: Projektwettbewerb auf Einladung, ohne Rang
– Dezember 2019 – Oktober 2020














