Auf der Brache der ehemaligen Kehrichtverbrennungsanlage entsteht durch die Überbauung Holliger eine neue gemeinnützige Wohnsiedlung mit rund 330 Wohnungen in einer lebendigen, gemeinschaftlichen Siedlung. Sechs Genossenschaften bespielen sechs Baufelder, welche in einem städtebaulichen Verfahren definiert wurden. In diesem Projektwettbewerb entwickelten wir für die Baufelder O3 und U3 eine Vision, welche durch die Jury mit dem 3. Preis bzw. dem 4. Rang gewürdigt wurde.

Baufeld U3
In Anlehnung an die industrielle Vergangenheit entwickelt das städtebauliche Thema einfache, zusammenhängende Volumen. Der geknickte Baukörper reagiert auf die Erschliessungszone der Werkgasse und schafft volumetrisch einen klaren Auftakt zum Quartierplatz. Entsprechend der städtebaulichen Leitidee zeichnet der Rücksprung die Körperlichkeit der einzelnen Volumen aus und passt sich damit der Körnigkeit der benachbarten Bauten an.
An der südöstlichen Ecke am Quartierplatz und zur Werkgasse ist das Café als Treffpunkt der Haus- und Quartierbewohner platziert. Über ein halbes Niveau sind die Waschküche und eine Velowerkstatt direkt mit dem Café verbunden und schaffen eine atmosphärische Durchmischung. Die gemeinsamen Waschküchen werden von jedem Treppenhauskern über einen internen Korridor erschlossen. Entlang der Ostfassade begleiten unterschiedliche Ateliernutzungen den Zugang zum Quartier und zum Gebäude. Dadurch entstehen neue Orte der Begegnung und der Identifikation.
Entsprechend der Leitidee folgt das Gebäude der Typologie des Durchwohnens. Überhohe Geschosse verweisen auf den geschichtlichen Hintergrund des Ortes und reagieren gleichzeitig auf die Tiefe der Grundrisse. Eine eingezogene Loggia führt den Aussenraum weit in das Gebäude und schafft ein hohes Mass an Privatheit. Die Grundrisse organisieren sich um eine zentrale Wohnhalle mit Küche, eine effiziente Erschliessung innerhalb der Wohnung ist gewährleistet. Gleichwertige Zimmergrössen ermöglichen eine hohe Flexibilität in der Art der Belegung. Die Zimmer können als Wohn-, Arbeits- oder Schlafräume genutzt werden. Den Abschluss des Gebäudes zum Quartierplatz bilden zweiseitig orientierte Eckwohnungen.
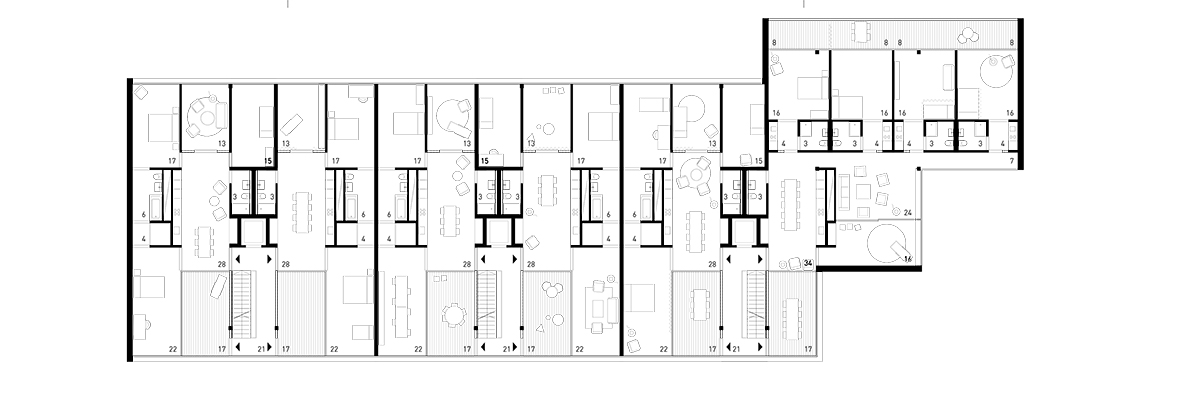
Baufeld O3
Der einfache Baukörper folgt der städtebaulichen Idee des bestehenden Gebäudes an der Güterstrasse 8, die horizontale Schichtung wird weitergeführt. Eine feine Zäsur in Form eines Durchgangs und die Staffelung des Gebäudes überführt den mächtigen Baukörper in eine Massstäblichkeit der umliegenden Bauten. Der nach Süden ausgedrehte Kopf trennt das Gebäude auch programmatisch.
Der rohe Ausdruck bildet die Grundlage für das künftige, urbane Leben. Dieser Charme wird Innen und Aussen zelebriert. Durchgänge, Laubengänge, Treppenhäuser, Öffnungen und Verengungen bilden die atmosphärische Dichte der Gemeinschaft, ohne den einzelnen Bewohnern diesen Grundgedanken aufzuzwingen. Glasbausteine schaffen die Beziehung unter den Individual- und Kollektivflächen. Entlang der Werkgasse sind die Zugänge angeordnet, diesen direkt angeschlossen sind gemeinschaftliche Flächen für Wäsche und Gewerbe.
Innerhalb der Baustruktur mit ihren Konstanten aus Stützen, aussteifenden Kernen und Schächten offenbart sich eine Vielfalt an Wohnungsgrundrissen. Es entsteht urbanes Wohnen, mit klarer wohnungsinterner Zonierung zwischen Kollektiv- und Individualbereich. Die Erschliessung der Wohnungen erfolgt über deren Aussenraumzimmer oder direkt. Diese Dualität schafft nachbarschaftliche Beziehungen in das Treppenhaus und die Werkgasse, Gemeinschaft und Individualität prägen die Erschliessungsbereiche. Das Zentrum der Wohnung ist die übergross konzipierte Halle mit Ess- und Küchenbereich. Diese ist gross genug, um auch als Wohn- und Essküche genutzt zu werden. Alle Flächen sind nutzbar, auf Korridorfläche wird verzichtet. Mit überhöhten Geschossen und eingeschnittenen Aussenräumen wird die Belichtung der tiefen Grundrisse gewährleistet.
Eckdaten:
– Bauherrschaft: FAMBAU Genossenschaft + Baugenossenschaft Brünnen-Eichholz, Bern
– Auftrag: Projektwettbewerb im selektiven Verfahren, 3. Preis / 4. Rang, 2019





