Auf dem Areal Gurzelen Nord in Biel wird gemeinnütziger Wohnungsbau mit Schwergewicht auf Familien, Gemeinschaft und klimafreundliche Bauweise gefragt. Zusammen mit der FAMBAU Genossenschaft bringen wir mit «Potpourri» Antworten auf vielfältige Anforderungen und Fragestellungen.

Potpourri ist ein genossenschaftlicher Wohnungsbau, dessen gemeinschaftliche Räume vorwiegend den Bewohner*innen dienen und die verdichteten Wohnflächen bereichern. Die Gemeinschaftsflächen strahlen aber nicht nur nach innen, sondern auch ins Quartier aus. Der grüne Aussenraum an der Blumenstrasse erweitert die grüne Lunge von «La Fleur – sie blüht» und an der nördlichen Spielstrasse treffen sich die Bewohner*innen mit der direkten Quartiernachbarschaft.
Die Umgebungsgestaltung bietet eine solide Grundlage, die von den zukünftigen Bewohner*innen partizipativ einfach ergänzt und anpasst werden kann. Sie hat den Anspruch, dass sich der Freiraum im Lauf der Zeit je nach seiner Nutzung wandelt, ohne dass er in einen ephemeren Zustand verkommt.
An der Blumenstrasse gliedern zwei grosszügige Eingänge den 90 m langen Bau, der ein kompaktes Volumen und eine oberirdische Geschossfläche von 4023 m2 aufweist, und bilden zwei gleichwertige Adressen. Die Zugangsfassade wirkt klar und grosszügig, bei genauer Betrachtung aber auch verspielt und spannungsvoll. An der Rue de Potpourri (Spielstrasse im Norden) wirkt die Fassade kleinmassstäblicher.
Wir verstehen die beiden Treppenhäuser als die zwei pulsierenden Herzen des Hauses. Hier findet die tägliche, direkte, gelebte Nachbarschaft statt. Die Treppenhäuser verbinden in der Vertikalen alle Geschosse sowie die gemeinschaftlichen Innen- und Aussenflächen. Direkt an den Treppenhäusern sind der Gemeinschaftsraum, die Werkstätte, die Dachterrassen, die Waschküchen, die Trocknungsräume, die Velo- und Anhängerabstellräume, die Joker- und Gästezimmer angegliedert.
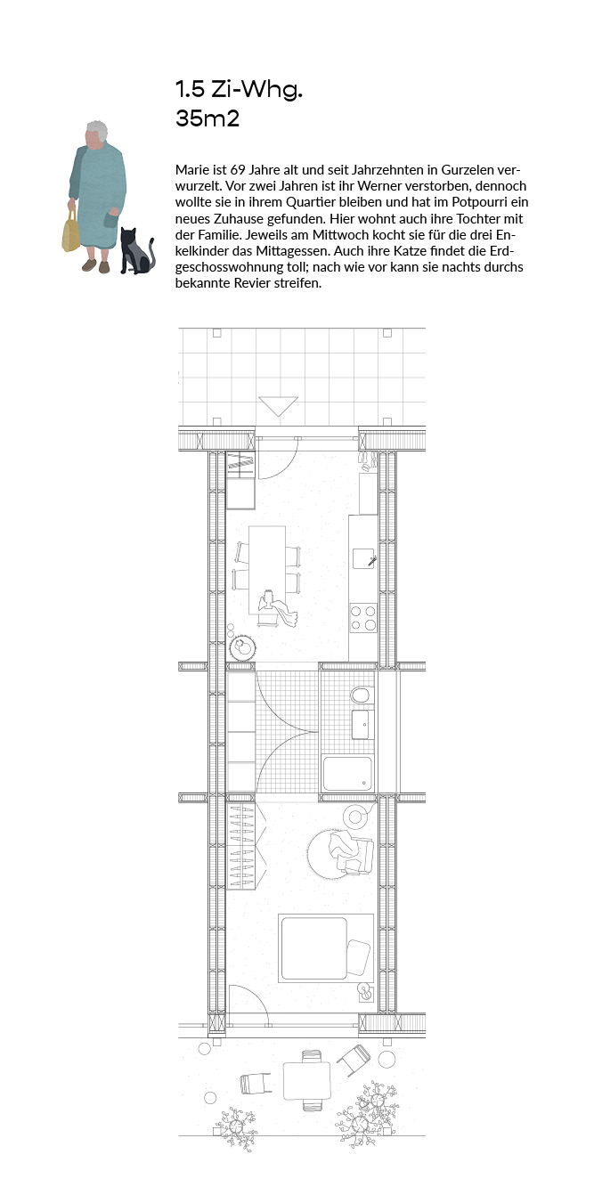
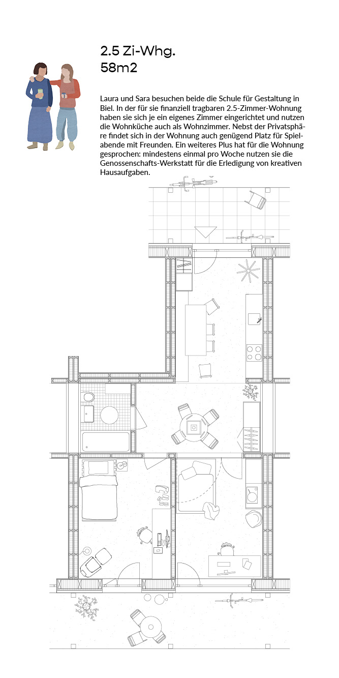
18 der 31 Wohnungen in der Siedlung Potpourri sind 4,5- und 5,5-Zimmer-Wohnungen und vorwiegend für Familien vorgesehen. Ergänzt wird der Wohnungsmix durch 1,5- bis 3,5-Zimmer-Wohnungen. Im Attikageschoss sind sieben Duplexwohnungen angeordnet und befreien so das zweite Obergeschoss von einer horizontalen Erschliessung. Konsequent bei allen Wohnungstypen lassen sich die Wohnräume räumlich abtrennen und als zusätzliches Zimmer nutzen. Die Wohnungen ermöglichen eine hohe Belegungsdichte. Die hohe Nutzungsdichte mit 43 m2 EBF pro Person bei minimaler Belegungsanzahl ist einer der Schlüsselgrössen zur Einhaltung der 2000-Watt-Anforderungen.
Der konsequente Holzbau verzichtet auf die Verwendung von verleimten Trägern und Decken, sie werden als sichtbare, gedübelte Brettstapeldecken ausgeführt. Eine Schüttung und ein geölter Unterlagsboden als Fertigbelag sorgen für Schallschutz und Masse. Die Innenwände werden als Holzständerwände tragend ausgeführt. Die Längsfassaden können als nicht tragende Elemente ausgeführt und grosszügig geöffnet werden. Die Einfachheit der Konstruktion widerspiegelt sich auch in der Haustechnik, die einen Lowtech-Ansatz verfolgt. In der Mittelzone der Wohnungen liegen die Steigzonen. Die zur solaren Verwendung geeigneten Flächen werden optimal genutzt, eine PV-Anlage an der Fassade wird in das Gestaltungskonzept integriert.
Die Wiederverwendung von Baumaterialen ermöglicht die graue Energie für die Gebäudeerstellung weiter zu reduzieren. So wird neben Recyclingbeton und Ziegelschrot bei Dachbegrünungen der vorhandene Kies des Parkplatzes als Schüttung für die Decken verwendet. Die hinterlüfteten Fassaden werden mit einem Fassadenprodukt (z.B. Trapezblech oder Wellenzementplatten) verkleidet.
Eckdaten:
– Auslober: Einwohnergemeinde Biel
– Auftrag: Architekturwettbewerb mit Präqualifikation für gemeinnützige Investoren und Planer, ohne Rang, 2021
Zusammenarbeit mit:
–Bauträger: FAMBAU Genossenschaft, Bern
–Landschaft: Extra Landschaftsarchitektur, Bern
–Energie/Nachhaltigkeit: Energie3, Bern
–Holzbauingenieur: Holzprojekt, Bern
–Gestaltung/Kommunikation: Wunderwerk GmbH, Bern










